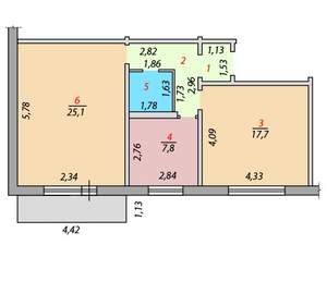
2-к квартира, вторичка, 47м², 7/9 этаж
4 550 000 ₽ 96 400 ₽ за м²
Орджоникидзевский район, мкр. Новобайдаевский, 40 лет Победы 7
Тамбур на две квартиры , совмещён санузел , изменён вход на кухню , лоджия вошла в квартиру , две гардеробных . В шаговой доступности - школы , садики ,поликлиника , магазины , гаражи , платная стоянк...
Собственник, 19.09.2025