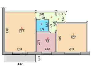
3-к квартира, вторичка, 62м², 3/5 этаж
4 800 000 ₽ 77 600 ₽ за м²
Кузнецкий район, Грибоедова 6
т. 73446037. продается трехкомнатная квартира с отличной локацией, все необходимое рядом: остановка, магазины, аптеки, детские сады, школа, парк, Дк "Алюминщиков", дом во дворе, два подьезда, блочный,...
Агентство, 16.11.2025