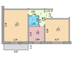
3-к квартира, вторичка, 60м², 4/5 этаж
5 800 000 ₽ 96 100 ₽ за м²
Центральный район, Ушинского 4А
Продам квартиру. В квартире сделан косметический ремонт, окна ПВХ, потолки высокие (3 м), с/у раздельный, просторный коридор, пол деревянный, потолок побелен, сантехника заменена, счетчик на воду установлен.
В подъе...
Агентство, 20.10.2025