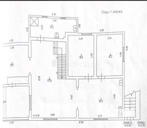
Дача 24м², 2-этажный, участок 11 сот.
1 100 000 ₽ 45 100 ₽ за м²
Центральный район, мкр. пос. городского типа Абагур, Дачный Городок 7
В доме никто не проживает, что позволит новому владельцу сразу заселиться без лишних затрат.
Дом в собственности, земля в аренде на 49 лет, договор заключён в 2023 году. Участок площадью 11 соток, ра...
Агентство, 27.09.2025