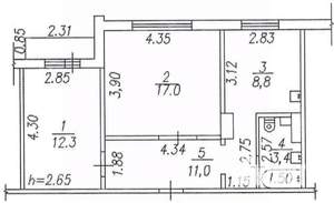
Дом 62м², 1-этажный, участок 6 сот.
2 800 000 ₽ 45 200 ₽ за м²
Центральный район, мкр. пос. городского типа Абагур, Кузбасская
Абагур Лесной. Дом и земля в собственности. Год постройки 1953, был полностью реконструирован в 2013 году. Материал стен бревно. Дом утеплен и обшит. Окна пвх, проведена новая электропроводка, отоплен...
Агентство, 17.09.2025