Дом 64м², 1-этажный, участок 9 сот.
3 600 000 ₽ 56 000 ₽ за м²
Орджоникидзевский район, мкр. Байдаевский, Воронежская 49
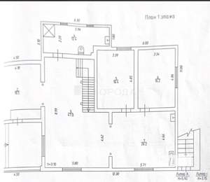
Площадь дома 64,3 кв.м. Площадь участка 8,6 сот.
Дом светлый и просторный: 4 комнаты, кухня, санузел и веранда. Крепкий и теплый, на фундаменте. Материал стен-брус. Установлены пластиковые окна, каче...
Агентство, 01.09.2025