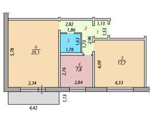
2-к квартира, посуточно, 45м², 2/5 этаж
2 700 ₽ в сутки
Центральный район, Орджоникидзе 46
Квартира расположена в центре города, рядом тц сити молл, дом быта, сибгиу, недалеко от авто и ж/д вокзала, в 5 минутах езды кемгу и фсин.
Рядом есть: супермаркеты, кафе, рестораны, медицинские центр...
Агентство, 11.11.2025